Porzione di trifamiliare in vendita

Genova, Via Piaggio - Castelletto
€ 1.450.000
13 locali 13 locali
540 Mq 540 Mq
3 bagni 3 bagni

Porzione di trifamiliare in vendita

Genova, Via Piaggio - Castelletto

Descrizione annuncio

Via Piaggio -

In uno dei contesti residenziali più esclusivi e ricercati di Genova, proponiamo in vendita una raffinata porzione di villa liberty di ampia metratura, disposta su tre livelli, che coniuga rappresentanza, vista aperta su tutta la città e straordinari spazi esterni.


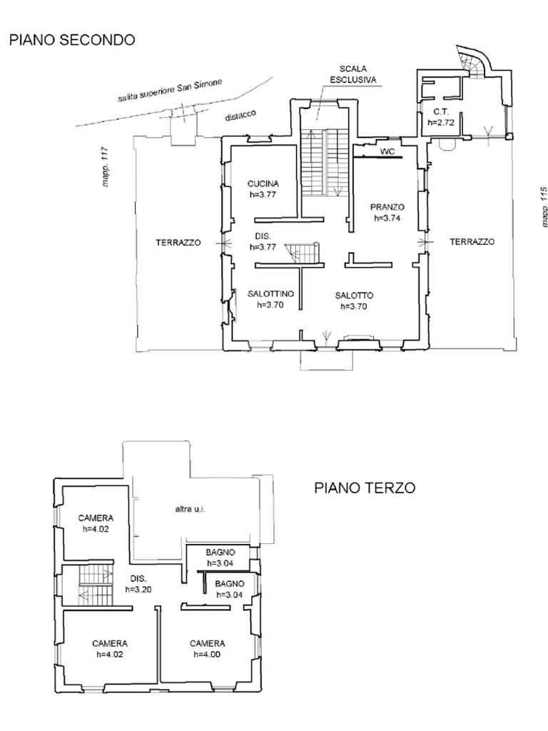
La porzione di villa si compone così di seguito: al primo piano troviamo uno studio e un triplo salone e da cui si può accedere a due ampi terrazzi e al balcone.

Al secondo piano abbiamo una cucina da cui si accede al giardino, due camere da letto matrimoniali e una camera singola e due bagni.

Al terzo e ultimo piano sono presenti una lavanderia ,due camere e un bagno. Da una delle camere si può accedere ai due terrazzi uno al piano l’altro sovrastante.

Inoltre l’immobile dispone di un box di MQ 70 e una cantina di MQ 90.

L'immobile si presenta come unica unità abitativa, volendo divisibile in due unità distinte.

Mostra tutto

Nelle vicinanze

Trasporto pubblico Trasporto pubblico
Darsena
Darsena
830 m
stazione di Darsena
stazione di Darsena
850 m
Righi
Righi
670 m
stazione di Genova Piazza Principe
stazione di Genova Piazza Principe
960 m
Piaggio 1 / Marco Polo
Piaggio 1 / Marco Polo
30 m
Ricariche auto elettriche Ricariche auto elettriche
Genova Belvedere Don Ga | EnelX
400 m
Genova Mercato del Carmine | EnelX
570 m
Eneldrive Punto Enel
570 m
Genova Dogali | EnelX
640 m
Stazione a monte Funicolare del Righi | EnelX
670 m
Scuole Scuole
Clemson Daniel Center for Building Research and Urban Studies
70 m
Albergo dei Poveri
300 m
Scuola primaria Maria Mazzini
390 m
Scuola superiore di primo grado Don Milani - Colombo
390 m
Convitto Colombo
580 m
Farmacia Farmacia
Farmacia
140 m
Farmacia San Nicolò
180 m
Farmacia Saltarelli
260 m
Farmacia IGEA
440 m
Farmacia di Castelletto
480 m
Ospedali Ospedali
Ospedale Evangelico Internazionale
990 m
Ospedale Galliera
2,3 Km
Ospedale Villa Scassi
2,9 Km
Supermercati Supermercati
Carrefour Express
120 m
E' il mio Supermercato
390 m
Simply
570 m
Punto Simply
580 m
E'
720 m
Negozi Negozi
Il Forno di San Nicola
160 m
Negozi
240 m
Laboratorio di maglieria la giuggiola
440 m
Focacceria Gastronomia Lo Spuntino di Castelletto
510 m
le bontà del grano
520 m
Bar Bar
Oberti
490 m
Tullio l'Aperitiviere
500 m
8 Rosso
530 m
togheter bar
530 m
Bar della Curva
610 m
Ristoranti Ristoranti
Maniman
140 m
Cornabuggia
520 m
t/terra - wine pub con cucina
580 m
Pizzeria Farinata La funicolare
600 m
La Funicolare
620 m
Mostra tutto

Caratteristiche

Rif.:
61161028
Piano:
Su più livelli di 3
Totale piani:
3
Box:
1
Balconi:
1
Terrazzi:
5
Mostra tutto
Prezzo Prezzo
€ 1.450.000
Rata mutuo Rata mutuo
€ 6.730 / mese
Spese annue Spese annue
€ 0
Proponi il tuo prezzoProponi il tuo prezzo

Classe Energetica

F
F
F
F
F
F
F
F
F
EP globale non rinnovabile:
101.98 kW h/m² anno
EP globale rinnovabile:
101.98 kW h/m² anno
EP invernale del fabbricato:
EP estiva del fabbricato:
Riscaldamento:
Autonomo
Tipo impianto:
A radiatori
Tipo alimentazione:
Metano

Ti interessa visionare l'immobile?

Fissa un appuntamento  Fissa un appuntamento

Richiedi informazioni

Clicca su Leggi per aprire l'informativa
* Questi campi sono obbligatori

Calcola il tuo mutuo

Semplice e senza impegno
Anticipo

( % )
Mutuo

( % )

pochi semplici passi

inserisci i tuoi dati
Questionario completato
Grazie per aver richiesto un appuntamento senza impegno con un nostro Consulente del Credito e Assicurativo.

Hai inserito correttamente tutti i dati necessari e a breve riceverai una e-mail con un link da convalidare per inviare i tuoi dati.
Affiliato
Studio Castelletto 1 Srl
Corso Firenze, 19R 16121 Genova (GE)

Il nostro staff


  • Alessandro Leo
    Collaboratore

  • Davide Martino
    Affiliato

  • Eri Alezzander Matamoros Macias
    Collaboratore

  • Ariel Rainero
    Coordinatrice
Corso Firenze, 19R 16121 Genova (GE)
Zona: Genova Castelletto
Mostra su mappa
Affiliato
Studio Castelletto 1 Srl
Corso Firenze, 19R 16121 Genova (GE)

2026 Tecnocasa Franchising S.p.A. - P. IVA 08365160152 - Via Monte Bianco 60/A 20089 Rozzano (MI). Ogni agenzia ha un proprio titolare ed è autonoma. Privacy policy | Policy utilizzo | Cookie policy