6 locali in vendita

Genova, Via Ameglia - Castelletto
€ 600.000
6 locali 6 locali
160 Mq 160 Mq
2 bagni 2 bagni

6 locali in vendita

Genova, Via Ameglia - Castelletto

Descrizione annuncio

VIA AMEGLIA -

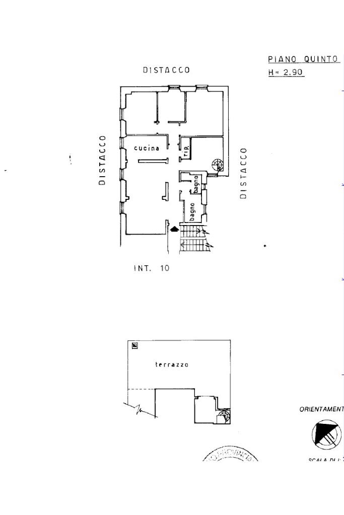
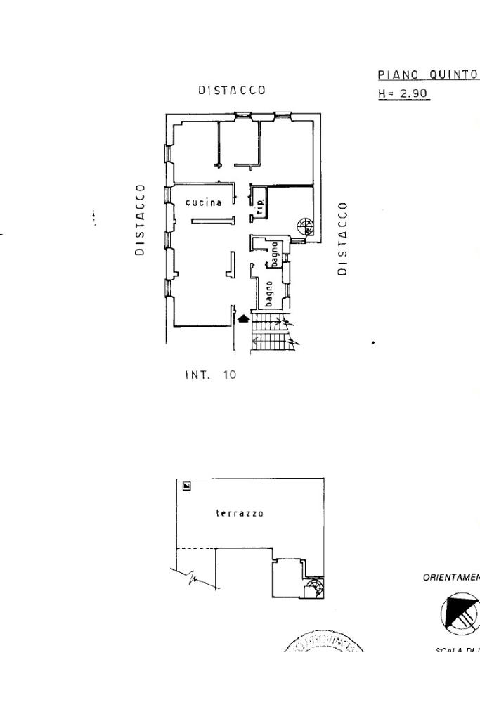
In una delle zone più tranquille e comode di Castelletto, precisamente in Via Ameglia, proponiamo in vendita un appartamento posto all' ultimo piano di un palazzo recentemente ristrutturato, con una metratura interna di circa 170 mq con terrazzo sovrastante.

L'immobile è composto cosi di seguito:

Nella zona giorno troviamo il soggiorno doppio e la cucina abitabile.

Mentre la zona notte è composta dalla camera matrimoniale , 2 camere singole e uno studio da cui si ha accesso tramite una scala interna al terrazzo di circa 100 mq e i due bagni.

Inoltre nella cifra di richiesta è incluso il posto auto di proprietà.

Mostra tutto

Nelle vicinanze

Trasporto pubblico Trasporto pubblico
Darsena
Darsena
990 m
stazione di Darsena
stazione di Darsena
1,0 Km
Righi
Righi
550 m
Genova Piazza Manin
Genova Piazza Manin
1,2 Km
Salvago 1 / Piaggio
Salvago 1 / Piaggio
80 m
Ricariche auto elettriche Ricariche auto elettriche
Stazione a monte Funicolare del Righi | EnelX
550 m
Genova Corso Magenta | EnelX
580 m
Genova Belvedere Don Ga | EnelX
630 m
Genova Mercato del Carmine | EnelX
700 m
Eneldrive Punto Enel
740 m
Scuole Scuole
Clemson Daniel Center for Building Research and Urban Studies
160 m
Scuola primaria Maria Mazzini
450 m
Scuola superiore di primo grado Don Milani - Colombo
520 m
Albergo dei Poveri
520 m
Istituto Santa Marta
580 m
Farmacia Farmacia
Farmacia
100 m
Farmacia IGEA
290 m
Farmacia Saltarelli
380 m
Farmacia San Nicolò
400 m
Antica Farmacia Sant'Anna
470 m
Ospedali Ospedali
Ospedale Evangelico Internazionale
830 m
Ospedale Galliera
2,3 Km
Supermercati Supermercati
Carrefour Express
340 m
E' il mio Supermercato
380 m
La Bottega SMA
710 m
Simply
800 m
Punto Simply
810 m
Negozi Negozi
Negozi
200 m
Il Forno di San Nicola
380 m
Focacceria Gastronomia Lo Spuntino di Castelletto
530 m
Laboratorio di maglieria la giuggiola
570 m
PAN Retrò
590 m
Bar Bar
Tullio l'Aperitiviere
460 m
Oberti
550 m
Bar gelateria artigianale Antica Vaccheria
570 m
Gelateria graniteria Don Paolo
670 m
togheter bar
670 m
Ristoranti Ristoranti
Maniman
370 m
La Funicolare
530 m
Pizzeria Farinata La funicolare
530 m
Ristorante Bar Montallegro
550 m
Ristorante I tre merli
590 m
Mostra tutto

Caratteristiche

Rif.:
61164107
Piano:
6 di 6 con ascensore (ultimo Piano)
Posti auto:
1
Terrazzi:
1
Camere da letto:
3
Arredamento:
Assente
Mostra tutto
Prezzo Prezzo
€ 600.000
Rata mutuo Rata mutuo
€ 2.848 / mese
Spese annue Spese annue
€ 2.000
Proponi il tuo prezzoProponi il tuo prezzo
Immobile valutato con T·Valuta

Classe Energetica

F
F
F
F
F
F
F
F
F
EP globale non rinnovabile:
101.98 kW h/m² anno
EP globale rinnovabile:
101.98 kW h/m² anno
EP invernale del fabbricato:
EP estiva del fabbricato:
Anno di costruzione:
1904
Riscaldamento:
Autonomo
Tipo impianto:
A radiatori
Tipo alimentazione:
Metano

Ti interessa visionare l'immobile?

Fissa un appuntamento  Fissa un appuntamento

Richiedi informazioni

Clicca su Leggi per aprire l'informativa
* Questi campi sono obbligatori

Calcola il tuo mutuo

Semplice e senza impegno
Anticipo

( % )
Mutuo

( % )

pochi semplici passi

inserisci i tuoi dati
Questionario completato
Grazie per aver richiesto un appuntamento senza impegno con un nostro Consulente del Credito e Assicurativo.

Hai inserito correttamente tutti i dati necessari e a breve riceverai una e-mail con un link da convalidare per inviare i tuoi dati.
Affiliato
Studio Castelletto 1 Srl
Corso Firenze, 19R 16121 Genova (GE)

Il nostro staff


  • Alessandro Leo
    Collaboratore

  • Davide Martino
    Affiliato

  • Eri Alezzander Matamoros Macias
    Collaboratore

  • Ariel Rainero
    Coordinatrice
Corso Firenze, 19R 16121 Genova (GE)
Zona: Genova Castelletto
Mostra su mappa
Affiliato
Studio Castelletto 1 Srl
Corso Firenze, 19R 16121 Genova (GE)

2026 Tecnocasa Franchising S.p.A. - P. IVA 08365160152 - Via Monte Bianco 60/A 20089 Rozzano (MI). Ogni agenzia ha un proprio titolare ed è autonoma. Privacy policy | Policy utilizzo | Cookie policy